医院・クリニック開業物件を関西(大阪・兵庫・京都・奈良・滋賀)でお探しの方!豊富な物件情報とノウハウで医院開院を支援します。

お電話でのお問い合わせ

メールでお問い合わせ

不動産関係の方 物件掲載依頼はこちら

開業物件詳細

兵庫県の医院開業物件情報

門戸厄神駅徒歩1分、認知度抜群の駅前医療拠点

①阪急電鉄今津線『門戸厄神駅』の改札口を出てすぐの立地で、
視認性に優れた新築医療モール
②半径1km圏内に42,5492人と潤沢な居住人口があり、且つ人口
が2.5%増加しているため将来性にも期待が出来る物件
③眼科は近隣2軒がオペ未実施につきオペ眼科はオススメのマーケット
④整形は2区画利用でリハビリにも対応可能

詳細情報

物件名称 クリニックステーション門戸厄神駅前
所在地 兵庫県西宮市門戸荘15-13
最寄駅 / 駅徒歩 阪急電鉄今津線『門戸厄神駅』 徒歩1分
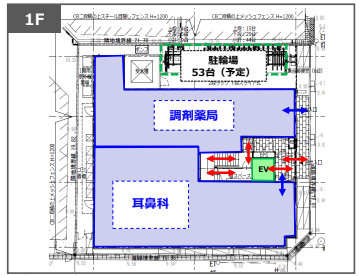
募集科目 整形外科 泌尿器科 眼科 その他 
募集区画・面積 3F-1:32.58坪
2F-1:40.85坪
賃料(共益・管理費) 3F-1:13,000円/坪 1,000円/坪(共益費) 501,732円(税込み)
2F-1:13,000円/坪 1,000円/坪(共益費) 629,090円(税込み)
保証金等 敷金:月額賃料の10ヶ月分 仲介手数料:月額賃料の1ヶ月分(指定業者あり)
契約形態 定期建物賃貸借契約
契約期間 30年間
物件種別 クリニックモール
引き渡し時期 即入居可(2025年5月OPEN)
こだわり条件 駅近く 医療モール 

地図