あなたのクリニック・医院開業を
サポートします。
ご希望の物件が見つからない方!
ご希望の物件が見つからない場合はお問合せください。
最適な医院開業物件をご提案いたします。
電話受付時間:平日9:00~18:00
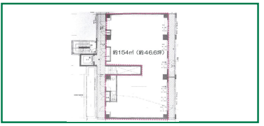
枚方オクヨシF 201号は、落ち着いた住宅エリア内のクリニック向け物件です。周辺は閑静な住環境が広がり、地域住民の日常医療を支えるクリニックとして安定した運営が期待できる立地です。
本区画は約46.6坪とゆとりある広さを確保しており、複数診察室の設置や検査スペースを必要とする施設にも適したプランニングが可能です。動線設計の自由度が高く、将来的な診療拡張やスタッフ増員にも柔軟に対応できます。
また、周辺には競合となる医療機関が比較的少なく、地域に根差した「かかりつけ医」としてのポジションを確立しやすい点も魅力です。静かな住宅地でじっくりと診療基盤を築きたい先生におすすめの物件です。
詳細情報
| 物件名称 | 枚方 オクヨシ2F 201号 |
|---|---|
| 所在地 | 大阪府枚方市宮之下町7−5 |
| 最寄駅 / 駅徒歩 | 京阪電鉄京阪本線 枚方市駅 徒歩32分 |
| 募集科目 | 小児科 整形外科 皮膚科 婦人科 泌尿器科 眼科 心療内科 神経外科 産婦人科 人工透析 美容外科 その他 |
| 募集区画・面積 | 2階:154m2 (約46.6坪) |
| 賃料(共益・管理費) | 月額:420,000円(税抜) |
| 保証金等 | ※仲介手数料として賃料1か月分を初回支払い。敷金:賃料2ヶ月、礼金:賃料2ヶ月(税込) |
地図
ご希望の物件が見つからない場合はお問合せください。
最適な医院開業物件をご提案いたします。
電話受付時間:平日9:00~18:00